
CAFE IN PESANGGRAHAN, JAKARTA (2O22)

STRIPPED-BACK PROMINENCE
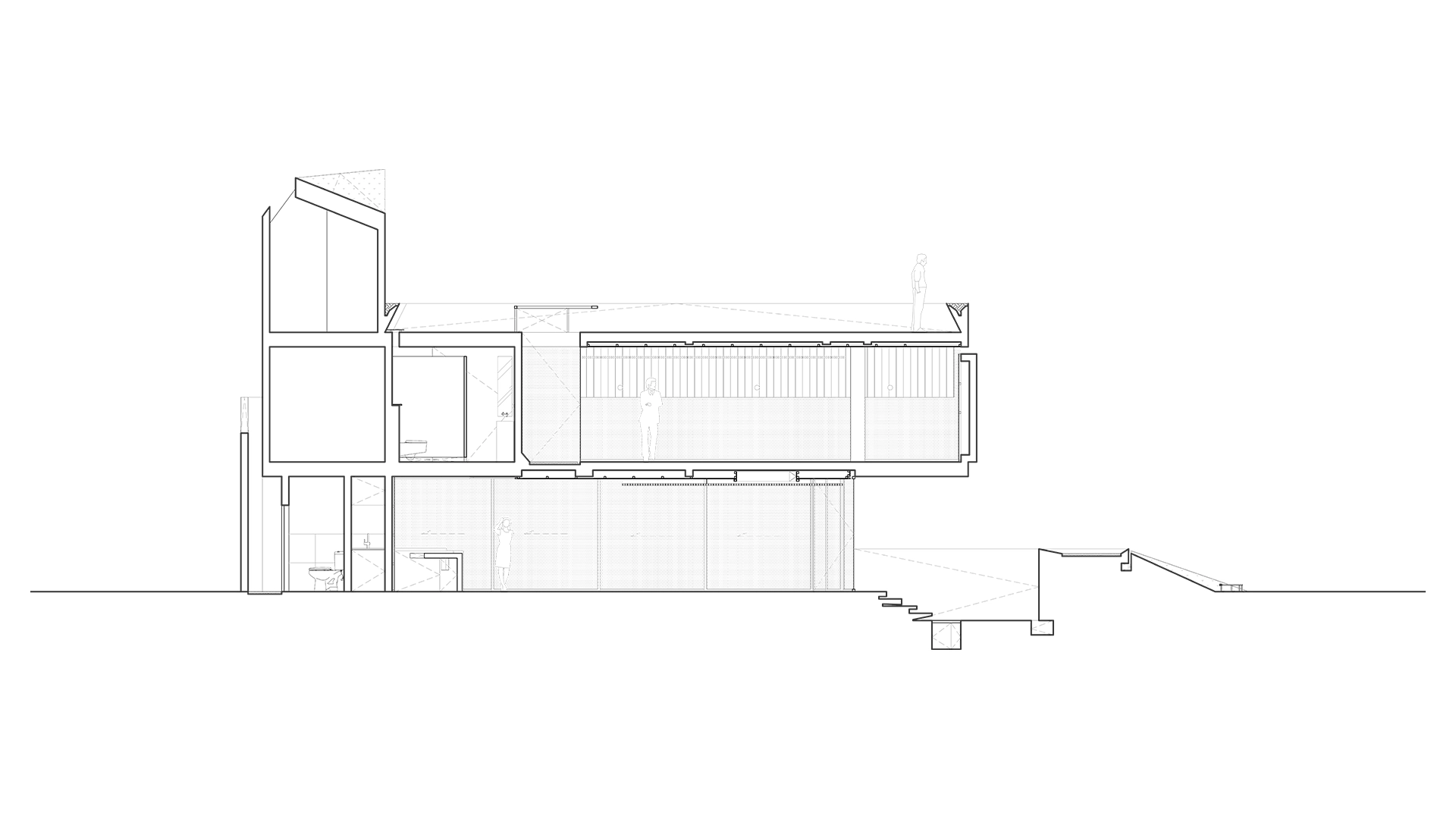
CONCEIVED TO ASSERT PRESENCE THROUGH RESTRAINT, THE BUILDING FAVORS CLARITY OF MASSES, TEXTURES, AND PLANES INSTEAD OF OVERT EXPRESSION. THE MONOLITHIC VOLUMES WITH RUGGED FINISHES ARE BALANCED BY LUSH VEGETATIONS AND REPOSEFUL WATER ELEMENT, SOFTENING THE COMPOSITION WITH MEASURED INTIMACY.
PRESENCE, SENSES
SPATIAL EXPERIENCES EMERGE THROUGH INTERPLAYS OF VOLUMETRIC COMPRESSION AND RELEASE. SUBSEQUENTIALLY, THE ATMOSPHERICAL SHIFTS ARE THEN AMPLIFIED BY THE RHYTHM OF SCALES, PROPORTIONS, AND SURFACE RENDERINGS. AS ENCLOSURES YIELD TO OPENNESS, THE BOUNDARIES DISSOLVE, ALLOWING INTERIOR AND EXTERIOR TO FLOW TOGETHER WITH INTUITIVE EASE.
DELIGHT OF RECTILINEARITY
SHARP ANGLES AND MULTIAXIAL PLANES DEFINE THE ARCHITECTURAL AND DESIGN OBJECT'S COMPOSITIONS, IN ARTICULATION OF GEOMETRIES THAT ARE ENTICING YET CONTROLLED. THUS, SPATIAL PERCEPTIONS ARE DELIBERATELY MODULATED AS SURFACES AND THRESHOLDS TAKE ON BOLD DEFINITIONS & VARIATIONS.











CAFE IN PESANGGRAHAN, JAKARTA (2O24)
SITE AREA: 232 SQM
BUILDING AREA: 300 SQM
CLIENT: MUHI EATERY AND COFFEE
GENERAL CONTRACTOR: MARGI BUILDS
FURNITURE MANUFACTURER: WOF WOODEN
STRUCTURAL ENGINEER: PUTRA CIPTA JAYA /
BASKARA WIDYI A. PUTRO
MEP ENGINEER: TRIPTA KARYA KONSULTINDO /
LOLLY MONGI
PLANT HANDLER: PLANT YOUR PLAN
PHOTOGRAPHER: BYJONATHANRADITYAS
OTHER SHOWCASE
SIGN UP FOR
NEWSLETTER
GENERAL INQUIRIES

RAGA ®2025 ALL RIGHTS RESERVED
JAKARTA, INDONESIA
BRAND
GMT+7